Geschichten und Geschichte aus Bochum-Nord
Abriss des Gerther Krankenhaus für 2025 geplant
- Gedenktafel für die ehemaligen Gerther Krankenhäuser
KKB - Verantwortung für Bochum und die Region seit 1848 - hochgeladen von Klaus Gesk
Vor genau 100 Jahren wurde das erste Gerther Krankenhaus eingeweiht. 1928 wurde es um ein markantes Vorgebäude erweitert. Beides und noch viel mehr wurde 2021 abgerissen.
(siehe Artikel)
Nun hat das Katholische Klinikum Bochum (KKB) eine Gedenktafel vor das jetzige Krankenhaus von 1935 aufstellen lassen. Darauf werden schon beiden Krankenhäusern gedacht. Denn laut aktueller Planung soll auch das letzte Gerther Krankenhaus 2025 abgerissen werden.
- Gedenktafel für die ehemaligen Gerther Krankenhäuser
KKB - Verantwortung für Bochum und die Region seit 1848 - hochgeladen von Klaus Gesk
„Damit leisten wir einen wichtigen Beitrag für die Strukturentwicklung im Stadtteil Gerthe." „Der historische Standort wird weiterentwickelt und in eine neue attraktive Zukunft geführt. Dies hat auch emotional hohe Bedeutung", sagt Prof. Hanefeld, Medizinischer Geschäftsführer des KKB.
Bereits gebaut und noch in diesem Jahr eingeweiht wird auf dem Gelände des vor 100 Jahren gegründeten Krankenhauses St. Maria Hilf bereits ein neues Ausbildungszentrum des KKB unter dem Dach des Bildungsinstituts BIGEST.
- Neubau BIGEST und Gerther Krankenhaus von hinten (Baulücken notdürftig geflickt)
- hochgeladen von Klaus Gesk
Direkt neben der denkmalgeschützten St. Elisabeth-Kirche gelegen, war das Gerther Krankenhaus seit 100 Jahren im Stadtteil ein wichtiger Orientierungspunkt. Aufgrund der von der Politik im Klinikbereich geforderten Spezialisierung und Konzentration hat das KKB in mehreren Schritten umstrukturiert, so dass in Gerthe nur noch ambulante Venenbehandlungen stattfinden.
- Nur das Venenzentrum ist dem Gerther Krankenhaus noch vorübergehend geblieben
- hochgeladen von Klaus Gesk
Auch rund um die Kirche im neuernannten „Wohnen am Hillerberg“ finden vorbereitende Aktivitäten statt. Der Parkplatz von HSW-Autoteile wurde weiträumig vom Gestrüpp und Unrat befreit und auch dem Haus Gerther Landwehr 32 geht es nun an den Kragen.
- Entstrüppter Parkplatz HSW (27.02.2023)
- hochgeladen von Klaus Gesk
- Hiltroper Landwehr 32
- hochgeladen von Klaus Gesk
Am Schwarzen Weg ist das Schild „Wildnis für Kinder“ verschwunden. Aber es wird wohl ein neues erstellt. Die "Wildniss für Kinder" bleibt, wird aber klarer strukturiert. Die eigentliche Wildnis wird weiter südlich mit einem Waldspielplatz ergänzt.
- Wildnis für Kinder (2022)
- hochgeladen von Klaus Gesk
- Wildnis für Kinder (27.02.2023)
- hochgeladen von Klaus Gesk
Am 8. März 2023 wird der Öffentlichkeit die neuesten Abrisspläne, aber auch aktuelle Information über den Umbau des Krankenhausgeländes und „Wohnen am Hillerberg“ im Amtshaus vorgestellt. Vielleicht gibt es noch mehr Überraschungen.
Interessierten Bürgerinnen und Bürgern stellt die Stadt den entsprechenden Bebauungsplan mit der Nummer 1026 nun auf einer Informationsveranstaltung am Mittwoch, 8. März, um 18 Uhr im Forum der Anne-Frank-Realschule, Heinrichstraße 2, vor.
Alle Infos hierzu: Bürgerversammlung informiert über Bebauungsplan
Hier der Bericht von der stattgefundenen Bürgerversammlung am 8. März 2023
Kurzbericht zur Bürgerversammlung zum Bebauungsplan Nr. 1026
Infos zum Bebauungsplan 1026 - Hiltroper Landwehr
- Das Neue Wohnen am Hillerberg
- hochgeladen von Klaus Gesk
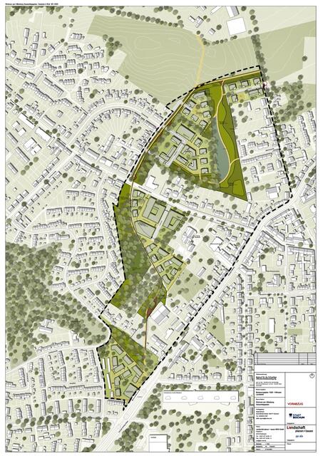
- Wohnen am Hillerberg - Bebauungs-Gesamtplan 02.2013 - Das Krankenhaus wird abgerissen und komplett überbaut. Die Pflegeschule wird extrem erweitert und ein weiteres Gebäude mit bisher unbekannter Nutzung danebengestellt.
- Foto: Stadt Bochum
- hochgeladen von Klaus Gesk
- Eine alte Planung des Umbaus des Krankenhausgeländes, noch mit Krankenhaus
- hochgeladen von Klaus Gesk
Auf jeden Fall gibt es 2025 in Gerthe ein großes Schlachtfest. Abgerissen wird neben dem Gerther Krankenhaus auch noch das alte Neue Schulzentrum von 1977 nach 48 Jahren. (siehe Artikel).
Ob uns Gerthern dann zum Feiern zu Mute ist?
Mein Beitrag zum 1. April 2021 wird immer mehr real.
Stadt Bochum: Aus GRÜN-Flächenamt wird BETON-Flächenamt
Vielen Gerther Bürgerinnen und Bürgern gefällt nicht, dass immer mehr Historisches aus unserem Stadtteil entfernt wird. Neben dem ersten Gerther Krankenhaus ist bereits das Gemeindehaus Bethanien, die ersten Gerther Schulen am Norrenberg und anderes verschwunden. Auch unser Verwaltungsgebäude Lothringen ist trotz aller Versprechungen noch nicht gesichert.
Das Kohlengräberland mit Ulrich Kind und andere Gerther Vereine haben deshalb einen Denkmalschutzantrag für das St. Maria-Hilf-Krankenhaus Bochum-Gerthe gestellt, den ich nachfolgend wiedergeben darf. Es sind nicht alle Bilder und Dokumente des Antrags dabei berücksichtigt worden, bzw. wurden durch aktuelles Material ersetzt.
Ulrich Kind
Kohlengräberland-Geschichtswerkstatt
Stadt Bochum 16.02.2023
Untere Denkmalbehörde
Frau Stallmann / Frau Buresch
Hans-Böckler-Str. 19 (Technisches Rathaus)
44787 Bochum
Denkmalschutzantrag für das St. Maria-Hilf-Krankenhaus Bochum-Gerthe
Sehr geehrte Damen und Herren,
hiermit stellen wir als ortsansässige Bürger*innen aus Bochum-Gerthe und
-Hiltrop gemäß des Denkmalschutzgesetzes NRW (DSchG NRW) den Antrag,
• ein Unterschutzstellungsverfahren für das verbliebene Hauptgebäude des
St. Maria-Hilf-Krankenhauses (heute Katholisches Klinikum), Hiltroper
Landwehr 11-13 in Bochum-Gerthe, gemäß § 5 DSchG NRW einzuleiten,
das historische Bauwerk unter Denkmalschutz zu stellen und in die
Denkmalliste der Stadt Bochum aufzunehmen.
• das historische Hauptgebäude des St. Maria-Hilf-Krankenhauses unter
„Vorläufigen Schutz“ gemäß § 4 DSchG NRW zu stellen.
Geschichte, Entwicklung und Bedeutung des Gebäudes
Mit der rasanten Entwicklung der Zeche Lothringen und der somit massiv wachsenden
Bevölkerung in Bochum-Gerthe und -Hiltrop entstand Anfang des 20. Jahrhunderts die
Notwendigkeit der infrastrukturellen Entwicklung des Ortes.
Nach dem Bau des Gerther Amtshauses (1910) wurden Bergmannssiedlungen, Ge-
schäftshäuser, Schulen, Kindergärten, Sportstätten, Kirchen und das Krankenhaus
errichtet.
An der Hiltroper Landwehr 11-13 wurde im Zuge dieser Entwicklung im Jahr 1913 die
katholische St. Elisabeth-Kirche (Denkmalschutz seit 1996) eingesegnet.
Das erste Gerther Krankenhaus wurde 1923 eingeweiht, 1929 erstmals erweitert und
feiert in diesem Jahr sein 100-jähriges Bestehen.
Der einerseits stetig wachsende medizinische Behandlungsbedarf für die Bergarbeiter
der Zeche Lothringen z. B. bei Arbeitsunfällen oder der Behandlung von Folgeschäden
(z.B. Silicose) und die medizinische Versorgung ihrer Familienangehörigen, aber auch
der medizinische Fortschritt machten im Laufe der Jahre bauliche Veränderungen und
Erweiterungen notwendig. Das heutige Hauptgebäude wurde wahrscheinlich in den
1930er-Jahren erbaut.
- 1. Gerther Krankenhaus von 1923 mit Vorderanbau von 1928
- Foto: Stadt Bochum - Ulrich Kind
- hochgeladen von Klaus Gesk
- Kapelle des Gerther St. Maria-Hilf Krankenhaus um 1929
- Foto: Stadt Bochum - Ulrich Kind
- hochgeladen von Klaus Gesk
Mit seiner Notfall-Ambulanz war das St. Maria-Hilf-Krankenhaus stets die erste Anlauf-
stelle für die Menschen im Bochumer Norden. Auch verfügte das Krankenhaus über
eine eigene Kapelle und einen Aufbahrungsraum. Es stellte für alle Bürger*innen eine
herausragende Institution dar und war ein bedeutendes Bindeglied im Sozialgefüge
der Ortsteile Gerthe und Hiltrop.
- Das jetzige Gerther St. Maria-Hilf Krankenhaus von 1935, Foto von 1942
- Foto: Stadt Bochum - Ulrich Kind
- hochgeladen von Klaus Gesk
- Maria-Hilf Krankenhaus mit Elisabeth-Kirche (02.2023)
- hochgeladen von Klaus Gesk
Das St. Maria-Hilf-Krankenhaus in der NS-Zeit
Eine besondere Rolle kam dem Krankenhaus in der NS-Zeit und während des zweiten
Weltkrieges zu.
Die Leitung und Pflege hatten die Nonnen vom „Orden der barmherzigen Schwestern
vom heiligen Vinzenz“ übernommen. Diese versorgten schon direkt nach der Macht-
übertragung auf die Nationalsozialisten ab März 1933 die schwerverletzten Opfer der
SA-Folter aus dem „Gerther Blutkeller“ in der ehemaligen Hegelschule.
Zu den bekanntesten Opfern des örtlichen NS-Terrors gehören das Gemeinderats-
mitglied Heinrich Fischer (KPD) sowie der jüdische Kaufmann Albert Ortheiler, die im
St. Maria-Hilf-Krankenhaus den Folgen ihrer schweren Misshandlungen erlagen.
In der Schlussakte zum Hauptprozess am 9. Juni 1947 wg. Verbrechen gegen die
Menschlichkeit wird das St. Maria-Hilf-Krankenhaus mehrfach genannt, da hier die
Opfer der grausamen Folterungen medizinisch erstversorgt und z. Teil tage- bzw.
wochenlang behandelt werden mussten.
Unter vielen anderen sind hier zu nennen: Der Knappschaftsinvalide Fritz Simelka
(Funktionär der Freien Gewerkschaft und SPD-Mitglied), der Invalide August Krause,
der Bergmann Johann Thönes (KPD-Mitglied), Albert Pufahl (Hausmeister, SPD-
Mitglied). Trotz der Bemühungen des medizinischen Personals verstarben hier auch
die Mordopfer des Gerther NS-Terrors, Johann Sigl, Bergmann und KPD-Mitglied,
und der Gemeindeabgeordnete Heinrich Fischer (KPD).
Der jüdische Kaufmann Albert Ortheiler wurde bewusst nicht in das Gerther St. Maria-
Hilf-Krankenhaus, sondern zu einem SA-Arzt im Bochumer „Bergmannsheil“ einge-
liefert, da die Belegschaft im Gerther Krankenhaus scheinbar als zu systemkritisch
eingeschätzt wurde und man um die „Gerüchte“ fürchtete, die über die Zustände im
„Gerther Blutkeller“ vom Pflegepersonal an die Öffentlichkeit hätten dringen können“.
Auch im Verlauf des Zweiten Weltkrieges hatte das St. Maria-Hilf-Krankenhaus eine
Schlüsselstellung. Nicht nur die Bombenopfer des Luftkrieges wurden hier behandelt
und versorgt, sondern auch viele hundert, durch Arbeitsunfälle verletzte und –
aufgrund der menschenunwürdigen mangelhaften Ernährung und Versorgung -
schwer erkrankte Zwangsarbeiter*innen und Kriegsgefangenen aus den Gefangenen-
lagern der umliegenden Zechen und Industrie-betriebe. Darüber hinaus wurden hier
auch Entbindungen von zum Teil minderjährigen Zwangsarbeiterinnen vorgenommen.
Ausdrücklich hervorgehoben sei an dieser Stelle, dass auch unzählige russische
Kriegsgefangene im Gerther Krankenhaus behandelt wurden, obwohl diese Gefange-
nen im NS-Terrorsystem als „Untermenschen“ betrachtet wurden und ihnen deshalb
in der Regel keinerlei medizinische Versorgung zugutekam. Umso mehr ist die Bedeu-
tung dieses Krankenhaus zu würdigen, da sein Personal sich - trotz aller Widrigkeiten
der Obrigkeit – für die Menschlichkeit im Bochumer Norden einsetzte.
Von der Nachkriegszeit bis in die Gegenwart
Das St. Maria-Hilf-Krankenhaus wurde in den Nachkriegsjahrzehnten mehrfach erwei-
tert (OP-Anbau und linker Gebäudekomplex vor der historischen Fassade), um dem
wachsenden Bedarf an Behandlungs- und Pflegekapazität gerecht werden zu können.
Gleichsam wuchs auch die Bedeutung dieser Institution und somit auch die Bindung
der Bürger*innen an das Gebäude.
- Mein Vater Herbert Gesk (1924-2021) vor seiner ehemaligen Geburtsklinik (1923-2022), später Schwesternheim und Pflegedienstbüro
- hochgeladen von Klaus Gesk
Die Notfall-Ambulanz „vor Ort“ war erste Anlaufstelle bei Tag und Nacht, die geria-
trische Abteilung versorgte die betagt gewordenen Patienten in nächster Nähe und die
Sozialstation des Pflegedienstes „vor der eigenen Haustür“ im ehemaligen Gründungs-
gebäude und späteren Schwesternheim hielten die Bindung an das Gebäude aufrecht.
- das erste Gerther Krankenhaus mit Erweiterungsanbau von 1928 - Foto 2020
- hochgeladen von Klaus Gesk
- Krankenhauspark 2020
- hochgeladen von Klaus Gesk
Die „Gerther“ sprachen und sprechen von „ihrem Krankenhaus“. Es ist das Gebäude,
das ihr Leben „von der Geburt bis zur Bahre“ begleitete. Die Bürger*innen betrachten
das Gebäude als ihr „kulturelles Erbe“, es wird seit jeher in einem Atemzug mit der
Kirche genannt und stellte für die Anwohner immer schon eine bauliche Einheit, ein
Ensemble dar.
- Gerther Krankenhaus und modernen Erweiterungsbau, abgerissen 2021- Foto von 2019
- hochgeladen von Klaus Gesk
Anlass und Zeitpunkt des Denkmalschutzantrages
Aufgrund der defensiven Informationspolitik der Stadtverwaltung Bochum, aber auch
aufgrund von Uninformiertheit und Fehlinformation durch Vertreter*innen der politi-
schen Gremien, mussten viele Bürger*innen bisher davon ausgehen, dass das St.
Maria-Hilf-Krankenhaus ebenso wie die benachbarte Elisabeth-Kirche unter Denkmal-
schutz stehe.
Laut Auskunft des Fachamtes für Denkmalpflege beim Landschaftsverband West-
falen-Lippe wurde in den 1990er-Jahren bereits ein erster Denkmalschutz-Antrag für
das Krankenhaus gestellt.
Die Antragsbegründung bezog sich seinerzeit jedoch ausschließlich auf die Gebäude-
substanz. In Hinblick auf die Umbauten und Erweiterungen in den Nachkriegsjahr-
wurde der Denkmalschutzantrag damals abschlägig beschieden.
Dem Ensemble-Charakter (mit der Elisabethkirche) wurde damals noch keine
Beachtung geschenkt und auch die historische Bedeutung des Krankenhauses – vor
allem während der Zeit des Nationalsozialismus als Ort der Menschlichkeit und des
Widerstandes - war damals noch weitgehend unbekannt und fand daher bei Antrag-
stellung und Entscheidung keinerlei Beachtung.
Die aktuellen Recherchen der Kohlengräberland-Geschichtswerkstatt und die
Bereitstellung von Dokumenten des ITS Arolsen und des Landesarchivs Münster
erfordern nun eine Neubewertung der Schutzwürdigkeit des St. Maria-Hilf-Kranken-
hauses und machen eine Neubewertung des damals abgelehnten Antrages erforder-
lich.
Bürger-Workshops und Handlungsleitfaden für Bochum-Gerthe 2018
Auch wurden die Bürger*innen zudem durch den „Handlungsleitfaden für Bochum-
Gerthe“ (herausgegeben von der Stadt Bochum im März 2018) in falsche Sicherheit
gewogen.
Nach den umfassenden Workshops unter Beteiligung der engagierten Bürgerschaft in
den Jahre 2016 – 2017 musste die Bürgerschaft nach der Veröffentlichung des
„Handlungsleitfadens“ davon ausgehen, dass die guten Vorsätze von Seiten der Stadt-
verwaltung und Bezirksvertretung ernstgemeint waren und der Bestand des Kranken-
hausgebäudes nicht infrage stünde. Siedlungsgefüge und Ortsbild von Gerthe, dem
„Dorf in der Stadt“, wie der Ortsteil von Seiten der Verwaltung oft bezeichnet wird,
schienen in den Augen der Bürger*innen nicht gefährdet zu sein.
Im Handlungsleitfaden der Stadtverwaltung wurde die Absicht manifestiert, „Gebäude-
bestände zu nutzen und gebaute Identitäten zu erhalten“ (S.12). Auf Seite 10 heißt es
unter der Überschrift „Perspektiven und Planungen“ hierzu sogar: „Das Maria-Hilf-
Krankenhaus ist architektonisch eine weitere Perle im Stadtbild. Hier können in Zukunft
weitere Entwicklungspotentiale entstehen.“
Bauvorhaben Gerthe-West und Bürgerbeteiligung seit 2019
Auch wurden die Bürger*innen aus Bochum-Gerthe und -Hiltrop im Rahmen des
Planungs- und Bürgerbeteiligungsverfahren zum Bauvorhaben „Gerthe West“ (jetzt:
„Wohnen am Hillerberg“) seit 2019, nicht zuletzt durch die mehrfachen Hinweise der
beauftragten Planungsbüros auf den „stadtbildprägenden Charakter“ des Gerther
Krankenhauses, beruhigt. Sie glaubten an Bestandssicherung und sahen deshalb von
einem erneuten Denkmalschutzantrag ab.
Neubau der Pflegeschule / Abriss „weiterer Gebäudeteile“
Im Zuge der Planungen um das Bauprojekt „Gerthe West“ (jetzt: „Wohnen am
Hillerberg“), aber vor allem seit dem Baubeginn für die neu entstehende Pflegeschule
des Katholischen Klinikums, regt sich der Unmut der Anwohner deutlich.
Der Abriss des Gründungsgebäudes mit der Krankenhauskapelle hat die Bürger
getroffen. Es wird vermehrt Unverständnis über den möglichen oder bereits geplanten
Abriss des verbliebenen historischen Krankenhausgebäudes und die somit absehbare
völlige Zerstörung des historischen Gebäude-Ensembles laut.
Die bereits entstandene Zerstörung des Siedlungsbildes auf der Hiltroper Landwehr
durch den ersten Neubaukomplex macht den Bürger*innen klar, welches Ausmaß an
Schaden hier noch zu erwarten ist, sollte der im genehmigten Bauantrag vorbehaltlich
formulierte „Abriss weiterer Gebäudeteile“ in die Tat umgesetzt werden.
Schon der jetzt entstehende Neubau wurde im Beirat für Gestaltung und Baukultur der
Stadt Bochum scharf kritisiert. Die Ergebnisse dieser Beratungen werden jedoch nicht
veröffentlicht, da in der Stadt Bochum – anders als in anderen Kommunen - eine Betei-
ligung von interessierten Bürgern hierbei nicht zulässig und eine offensive und ehrliche
Information der Bürger nicht vorgesehen ist. Auch aufgrund dieser ungenügenden
Transparenz, fühlen sich die Anwohner ent- und getäuscht.
100-jähriges Bestehen des St. Maria-Hilf-Krankenhauses
- Das Krankenhaus steht noch vor seiner Gedenktafel
- hochgeladen von Klaus Gesk
Im Zuge des 100-jährigen Bestehens des Gerther Krankenhauses wurde zudem
kürzlich eine Informationstafel vom Katholischen Klinikum Bochum aufgestellt, die die
historische Bedeutung des Kranken-hauses für Gerthe und die Umgebung
herausstellt.
Auch hier ist keinerlei Hinweis auf den geplanten Abriss des historischen Gebäudes
zu finden. Viele Bürger interpretierten die Aufstellung der Infotafel als weiteren Beleg
für den Fortbestand des historischen Gebäudes.
Denkmalwert-Begründung
Wir, die Antragsteller*innen beantragen Denkmalschutz gemäß DSchG NRW für das
St. Maria-Hilf-Krankenhaus in Bochum Gerthe aus den folgenden Gründen:
• Es besteht ein öffentliches Interesse an der Erhaltung des Krankenhaus-
Gebäudes, weil es für die (persönliche Lebens-)Geschichte und die Identi-
fikation der Anwohner in Bochum-Gerthe und -Hiltrop, aber auch der Allgemein-
heit hinsichtlich der industriegeschichtlichen, städtebaulichen Entwicklung
symbolisch bedeutend ist (DSchG NRW, § 2, Abs 1.)
• Die historische Bedeutung des Krankenhauses für die medizinische Versorgung
der Bergmänner, Industriearbeiter*innen und ihrer Familienangehörigen in
Bochum-Gerthe, -Hiltrop und Umgebung, aber insbesondere die wehrhafte
Haltung der Ärzte und des Krankenhauspersonals während der Zeit des NS-
Terrors und des Zweiten Weltkrieges müssen durch die Erhaltung des
Gebäudes sichtbar manifestiert und gewürdigt werden.
• Das historische Krankenhausgebäude befindet sich neben der katholischen
Elisabeth-Kirche und dem Pfarrhaus sowie den umgebenden Wohnhäusern
(der ehem. Zechenbeamten), die von der Bergbau AG Lothringen errichtet
wurden. Es wird von der Bevölkerung mit den ihnen verbundenen Grünanlagen,
Plätzen und Freiflächen als Siedlungs-Ensemble begriffen. Der Bereich und die
Silhouetten der Gerther St. Elisabeth Kirche und des St. Maria-Hilf-
Krankenhauses prägen den Straßenzug der Hiltroper Landwehr und das
Ortsbild (DSchG NRW, § 2, Abs 3).
„Die Belange des Denkmalschutzes und der Denkmalpflege sind bei allen
öffentlichen Planungen und Maßnahmen angemessen zu berücksichtigen (DSchG
NRW, § 3).“ Vor der weiteren Überplanung des Krankenhaus-Grundstücks und
dem evtl. geplanten Abriss des verbliebenen Gebäudes muss die Erhaltung und
(Um-)Nutzung des Gebäudebestandes geprüft werden. Durch den Rückbau der
nachträglichen Anbauten (z.B. OP-Trakt und linker Gebäudeteil könnte sogar eine
Wiederherstellung der ehemaligen Vorderansicht des Gebäudes erreicht werden.
Zumindest die Erhaltung und Integration der straßenseitigen Gebäudefassade
(DSchG NRW, § 8, Abs. 1) sowie eine angemessene Gestaltung ihrer Umgebung
(DSchG NRW, § 3) würde den Siedlungsbereich und das Ortsbild nachhaltig
aufwerten.
• Aufgrund seiner direkten Nachbarschaft zur denkmalgeschützten katholischen
Elisabethkirche sollte das Gebäude des St. Maria-Hilf-Krankenhauses sowie
dessen Vorplatz als schutzwürdiges Gebiet (gem. DSchG NRW, § 10) in die
Denkmalbereichssatzung der Stadt Bochum aufgenommen werden
• Bereits der erfolgte Abriss des Gründungsgebäudes des ursprünglichen
Krankenhauses aus dem Jahr 1923 (später Schwesternwohnheim, dann
Sozialstation) mit Kapelle und Aufbahrungshalle war ein erheblicher und
unwiederbringlicher Verlust für die Gerther Bevölkerung. Gerade eine Ruhrge-
bietsstadt wie Bochum, die während des Zweiten Weltkriegs den meisten Teil
ihrer historischen Bausubstanz verloren hat, sollte sich um den Erhalt der
wenigen verbliebenen historischen Gebäude sorgen und sich für deren Erhalt
einsetzen. Die Identifikation der Menschen mit ihrer Heimat und ihrem (bau-)
kulturellen Erbe ist eine wesentliche Basis des bürgerschaftlichen
Gemeinwohls.
Aufgrund unserer vorangegangenen Ausführungen und der historischen Fakten be-
trachten wir dieses Gebäude als besonders schutzwürdig, um es auch für nachfolgen-
de Generationen zu erhalten.
Ulrich Kind
für die Kohlengräberland-Geschichtswerkstatt
und das Kohlengräberland-Schulprojekt der Erich-Fried-Gesamtschule Herne
Weitere Unterzeichner*innen des Denkmalschutzantrages:
Gerhard Henke
für die Bürgerinitiative Gerthe West – So nicht!“
Ulrike Boehner
für die Bürgerinitiative Gerthe West – So nicht!“
Gertrud Kant
für die Bürgerinitiative „Pro Gerthe“ e.V.
Hans Mohlek
für den Bergmanns-Kameradschaftsvereins „Glückauf Gerthe 1891“ e.V.
P.S.
Eine Ausfertigung des Antrages leiten wir an das Fachamt für Denkmalpflege
des LWL, z. Hd. Frau Dr. Eva Dietrich, Fürstenbergstr.15, 48147 Münster weiter.
Community:Klaus Gesk aus Bochum |

Sie möchten kommentieren?
Sie möchten zur Diskussion beitragen? Melden Sie sich an, um Kommentare zu verfassen.